Dlaczego CAD Kuchnie
To specjalistyczne oprogramowanie do projektowania kuchni oraz mebli kuchennych. Posiada unikalne funkcje tworzenia i edycji szafek, jak również modelowania 3D. Zawiera także bazy sprzętu AGD, a dzięki optymalizacji cięcia płyt meblowych jest programem najlepiej odpowiadającym na potrzeby stolarzy i właścicieli salonów meblarskich.

Licencje CAD Kuchnie

Kupując CAD Kuchnie
Pakiet EXPERT otrzymasz GRATIS*
Wsparcie, wiedza i narzędzia, których potrzebujesz,
by projektować jak profesjonalista.
*Licencja bezterminowa i czasowa – 12 miesięcy, licencja próbna – 28 dni.
Zastanawiasz się, który program wybrać? Zobacz porównanie naszych programów TUTAJ

Dla kogo CAD Kuchnie
- Projektanci wnętrz – freelancerzy i pracownicy biur projektowych, wyspecjalizowanych w tworzeniu kuchni.
- Producenci mebli – do projektowania szafek oraz optymalizacji zużycia materiałów i kosztów produkcji.
- Stolarze – do projektowania kuchni i rozkrojów płyt meblowych kompatybilnych z maszynami CNC.
- Sprzedawcy i doradcy w salonach kuchennych – do tworzenia układów i wizualizacji dla klientów na miejscu.
- Firmy remontowo-wykończeniowe – do pokazania klientowi efektu końcowego przed rozpoczęciem prac.
- Deweloperzy i inwestorzy – do tworzenia wizualizacji mieszkań pokazowych i materiałów marketingowych.
Najważniejsze funkcje CAD Kuchnie
Rozbudowane możliwości budowy kuchni
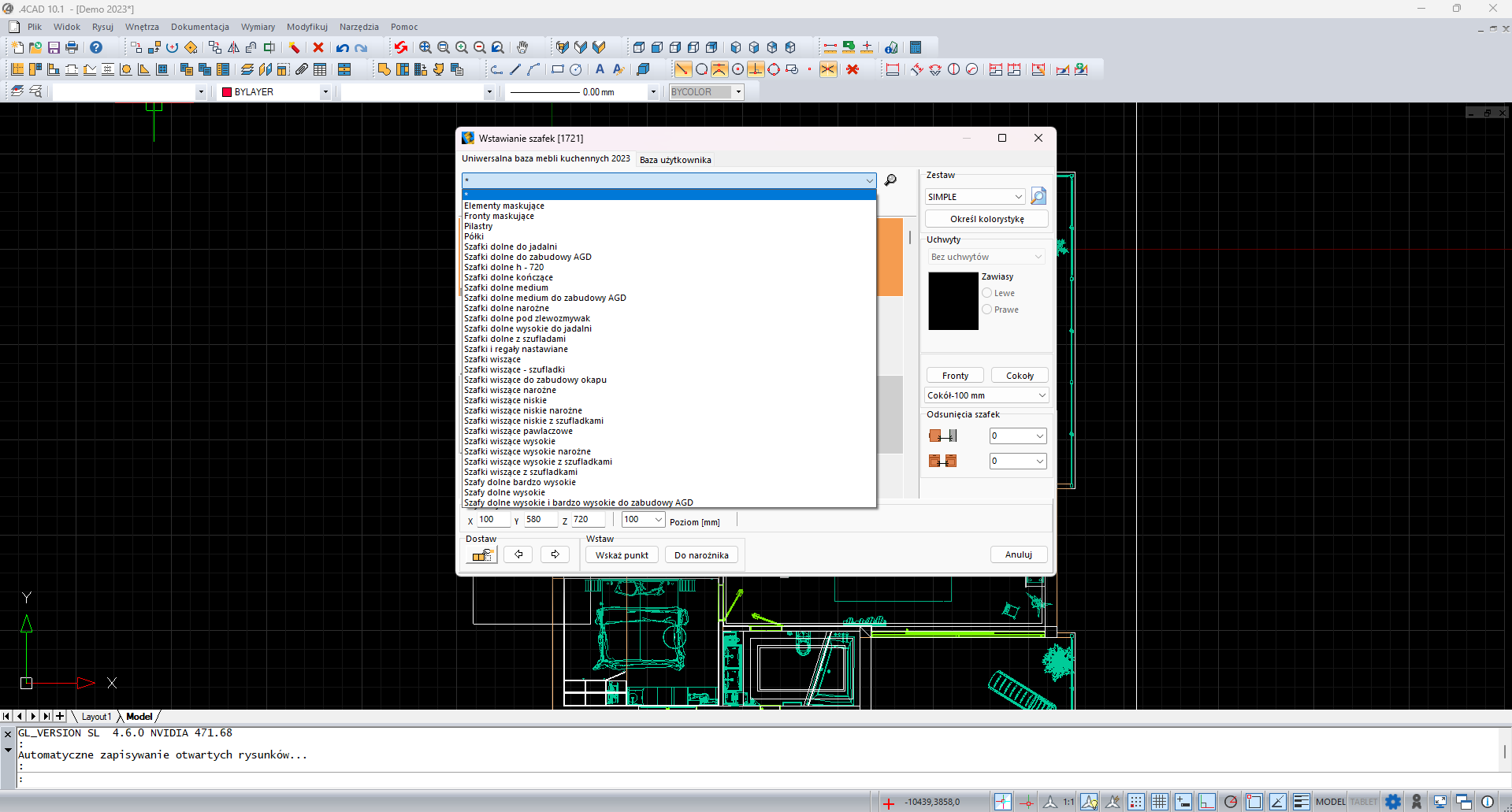
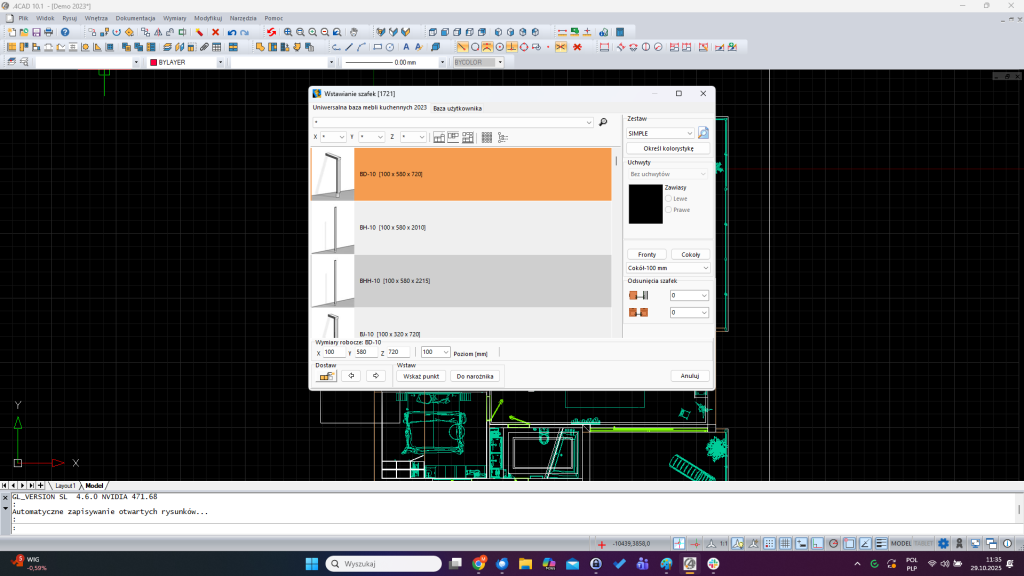
Wybór bazy i zestawu szafek
- Użytkownik wybiera bazę szafek, do której przypisany jest zestaw (kolekcja szafek).
- Zestaw może być modyfikowany w trakcie pracy — użytkownik ma pełną kontrolę nad konfiguracją.
- Możliwość doboru kolorystyki dla: korpusów, frontów, uchwytów, płyt, obrzeży, profili listew.
- Wszystkie zmiany są wizualnie podglądane na bieżąco, np.: wygląd frontów, typ i kolor uchwytów.
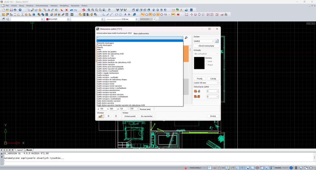
Filtrowanie, wyszukiwanie i selekcja szafek
- Filtr główny: możliwość wyboru typu szafek (dolne, wiszące, regały itp.).
- Wyszukiwanie wg wymiarów (X, Y, Z).
- Wyszukiwanie po fragmencie nazwy lub kodu.
- Przeglądanie szafek w formie galerii lub listy.
- Dobór dodatkowych elementów szafki: uchwyty, zawiasy (lewe/prawe), cokoły, nogi, fronty dodatkowe (jeśli baza to obsługuje).
Metody wstawiania szafek
- „Wskaż punkt” — wybór punktu w projekcie, określenie pozycji i kąta.
- „Do narożnika” — wskazanie ściany / narożnika, do którego szafka się dostawi.
- „Dostaw do ostatniej” — program automatycznie „dokleja” kolejną szafkę do ostatnio wstawionej.
- „Dostaw do lewej/prawej” — wybór strony, po której ma być dostawiona nowa szafka.
Edycja wstawionych szafek
- Funkcja umożliwia modyfikację już umieszczonych szafek w projekcie.
- Możliwość zmiany: szerokości, głębokości, wysokości, poziomu montażu, strony zawiasów.
- Dodatkowe opcje edycji obejmują: zmianę uchwytów, dodawanie lub , usuwanie cokołów, dodawanie lub usuwanie frontów, zmianę typu szafki w ramach zestawu.
- Uchwyty można: przesuwać w pionie i poziomie, obracać o 90° lub dowolny kąt.
Moduł AGD i integracja sprzętu
- Wstawianie urządzeń wolnostojących oraz do zabudowy z bazy producentów, wraz z podglądem, opisami i schematami montażowymi.
- W przypadku mebli przystosowanych do zabudowy można przypisać konkretne urządzenie do wybranego modelu szafki, program automatycznie podpowiada zgodne modele.
- Dla urządzeń montowanych na blatach (np. płyty grzejne, zlewozmywaki) dostępne są opcje: ustawienie odsunięcia od boków, centrowanie, poziomowanie, obrót, montaż „pod blatem” (dla zlewozmywaków).
Edytor szafek i tworzenie własnych modeli
- Edycja istniejących modeli szafek.
- Tworzenie własnych szafek 3D.
- Dodawanie szafek do własnej bazy.
- Modyfikacje obejmują: korpus – zmiana wymiarów, grubości, typu, półki – dodawanie, usuwanie, pozycjonowanie, wybór materiału, fronty – ustawienie aktywnego frontu, podziały, typ zawiasów.
- Edytor zestawów pozwala na: zapisywanie zmian, dodawanie lub usuwanie szafek z zestawu, zmianę frontów, konfigurację uchwytów.


Zaprojektujesz własne elementy

Wstawisz szafki kuchenne

Wybierzesz producenta AGD

Dobierzesz wyposażenie wnętrz

Użyjesz markowych płytek i fug

Wybierzesz tekstury i zdefiniujesz materiały

Wykreujesz wizualizację

Wykonasz dokumentację techniczną

Stworzysz animacje i filmy AVI

Zaprezentujesz projekt przy użyciu technologii VR w aplikacji obserVeR

Uzyskasz animację sferyczną i panoramę 360

Wymagania w pigułce
Dotyczy programu CAD Kuchnie z Render PRO
- System: Windows 10/11 (64-bit).
- Procesor: zalecane 4 rdzenie, SSE 4.1
- RAM: zalecane 16 GB
- Karta graficzna: tylko NVIDIA GeForce
- Dysk: ok. 120 GB wolnego miejsca
- Internet: potrzebny do aktualizacji













